Architect in Woodstock Valley, CT
Experience Our Work
Located in Woodstock Valley serving New London and surrounding areas.
Providence, RI
Architects
Peaslee Architect, P.C. provides a complete line of architectural services for large or small scale construction projects and is recognized for reliable technical expertise and design excellence. Our qualified team of professional architects, engineers and administrative professionals has successfully managed a diverse range of residential and commercial building projects in the Providence, RI region with outstanding results.
To see more of our portfolio, please click the button below.
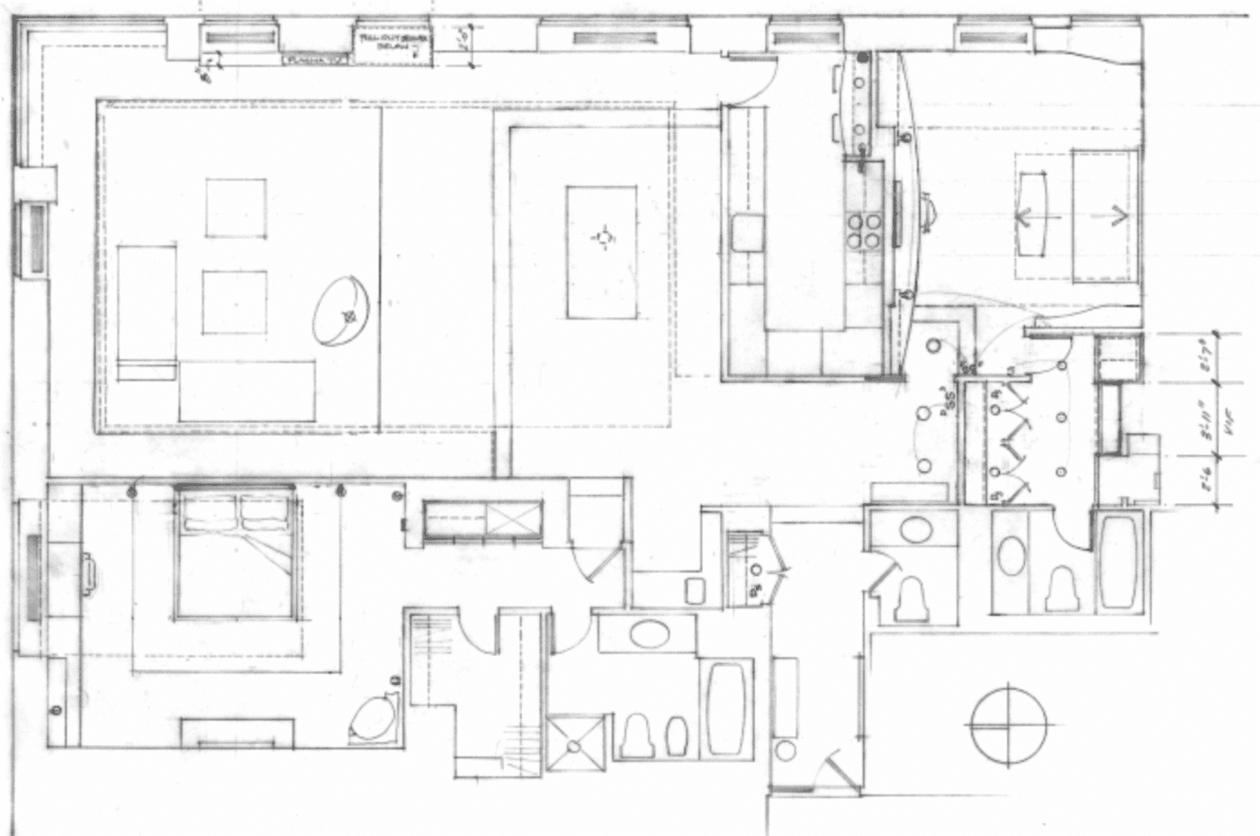
Cost Effective and Efficient Building Project Plans
Committed to building close working relationships with our clients, Peaslee Architect, P.C. also strives to add value to the local New London community through our use of sustainable materials and our dedication to maintaining the highest industry standards.
Working with an experienced architect at any stage of your construction project helps to avoid delays and errors in design and performance. Peaslee Architect, P.C. can help you achieve the most cost effective and exclusive architectural designs that meet the needs of your commercial or residential development projects from start to finish. Contact our professional team of architects for a hands-on, personalized approach that is rarely found with larger firms by calling us today.
Why Do You Need an Architect?
Hiring an architect to help guide you through a residential renovation project, such as a kitchen extension, or basement upgrade. It can also minimize costs in the long run and allow you to achieve the full potential of your home in New London.
The benefits of hiring an architect are endless. They not only help you navigate the labyrinth of design options but are able to foresee and prevent potential complications. A professional Architect will save you a lot of stress, time and money. They will work tirelessly so you can achieve your desired result and will help with the following:
Zoning Approvals
Your design is complete and you’re ready for the next step, building! However, if your building is not zone approved you could be in for some serious trouble. An architect will make sure the legal work is completed before the construction process even begins.
Custom Design
Your architect will help you with the creation process, depending on their area of expertise. They will spend hours writing detailed descriptions of building and design materials. All of your ideas must be transcribed formerly for cost and instructive purposes.
Oversee & Manage the Project
As a homeowner, you’ll notice that overseeing a construction project is a lot of work and can cause an enormous amount of anxiety. You won’t be losing your artistic input by hiring an architect. If anything you’ll be saving yourself a lot of headaches. You are not getting paid to manage your design project or deal with minor issues. A professional manager will keep your creativity flowing and the stress at bay.
Get in Touch with Us
For Any Architecture Related Inquiries
For more information, give us a call at (718) 383-8909 or email us at design@stuartpeaslee.com

























